2016
This post is the second part of Hyunju Jang’s research paper, “Integration of variation arising from occupants’ behaviours consuming heating and electricity into an energy model of existing apartment buildings” , published in Energy and Buildings, accessed by http://dx.doi.org/10.1016/j.enbuild.2016.03.037.
Apartment buildings have evolved to be self-sufficient for occupants despite the unified features of buildings. The usage of heating and electricity has been individually controlled in each apartment unit. Hence, the consumption rate under the same conditions can be significantly varied. Significant variations in energy uses has been reported with empirical data. However, energy models with standardised conditions in the existing literature are not flexible enough to take into account the possible variations. Furthermore, the results would contain a high amount of uncertainty due to random behaviours of energy consumption.





Existing field studies have indicated how much energy consumption can vary by occupant energy behaviour. One of the existing studies divided consumers living in the same apartment buildings by the heating consumption levels, due to the normality of the three distributions in the frequency density: lower than 500 kWh, 501–3000 kWh and higher than 3000 kWh. Electricity consumption could also vary from 50 to 750 kWh among 100 households, and the consumption for standby was between 0 and 1300 kWh per year. The monitored usage of electric appliances, apart from the consumption for space heating and hot water, was differed between 35% and 40% depending on the characteristics of the consumer’s behaviours.
In order to take these variations caused by occupants’ controls into building simulations, energy modelling in existing literature has attempted to integrate the variations with a probabilistic approach, rather than deterministic values. One of the probabilistic approaches is to use stochastic models. The concept of stochastic occupants’ behaviours considers human behaviour as not deterministic, but complex and unpredictable actions which are represented by a composition of observable states. Therefore, the stochastic model of occupants’ behaviours takes the probability of actions which brings about energy consumption or a change in indoor environment. The stochastic models refine the ranges of possible consumption behaviours with the quantified probability. Therefore, the models draw uncertain factors with the more distinctive boundaries in building simulations. However, the limitations of stochastic models can be that they do not provide consistent results that can be directly input in building simulations, even the results are within the probable ranges.


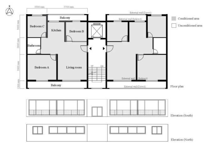
Figure 1. Description of the apartment units (left) and Prior distributions of uncertain parameters in energy model (right)
This study aimed to develop a probabilistic model of occupant random behaviour consuming heating and electricity, regarding the variation in actual energy consumption for old high-rise apartment buildings. A model considering occupant random behaviour consuming heating and electricity is developed to reflect variations in actual energy consumption in apartments. Moreover, the effects of various parameters of occupant behaviour in relation to the model were examined. In total 96 apartment blocks in Seoul were used as samples. Gaussian Process Classification was applied to modify occupant random behaviours corresponding to the probability of energy consumption. As a result, it has been found that occupants’ general heating controls (25% deviation) are between three and eight hours, with 17–20 ◦C set temperatures. Moreover, the operating hours of electric appliances and lighting are also approximated with the probabilities. This methodology could reduce uncertainties in building simulations and provide a broader application in buildings with similar development stages.




Figure 2. Optimisation of model estimations in comparison to the variation in actual energy consumption







Figure 3 Results of Gaussian Process Classification for heating and electricity consumption

Figure 4. Estimated energy consumption with the probability of the standardised conditions